АТГ Сервіс Буд
АТГ СЕРВІС БУД Modular Homes
Сучасний модульний будинок з панорамними вікнами
Модульні будинки нового покоління

Сучасні модульні будинки для життя та бізнесу Від ідеї до монтажу за 30 днів.

3 класи комплектації або індивідуальне проектування. Не потребують капітального фундаменту.

Комплектації ↓
АТГ AI Асистент● Онлайн
Гортайте
Вітрина

Три класи комплектації

Оберіть оптимальний варіант або створіть індивідуальний проект.

Модуль Стандарт — фасад Модуль Стандарт — бічний Модуль Стандарт — інтер'єр Модуль Стандарт — вид
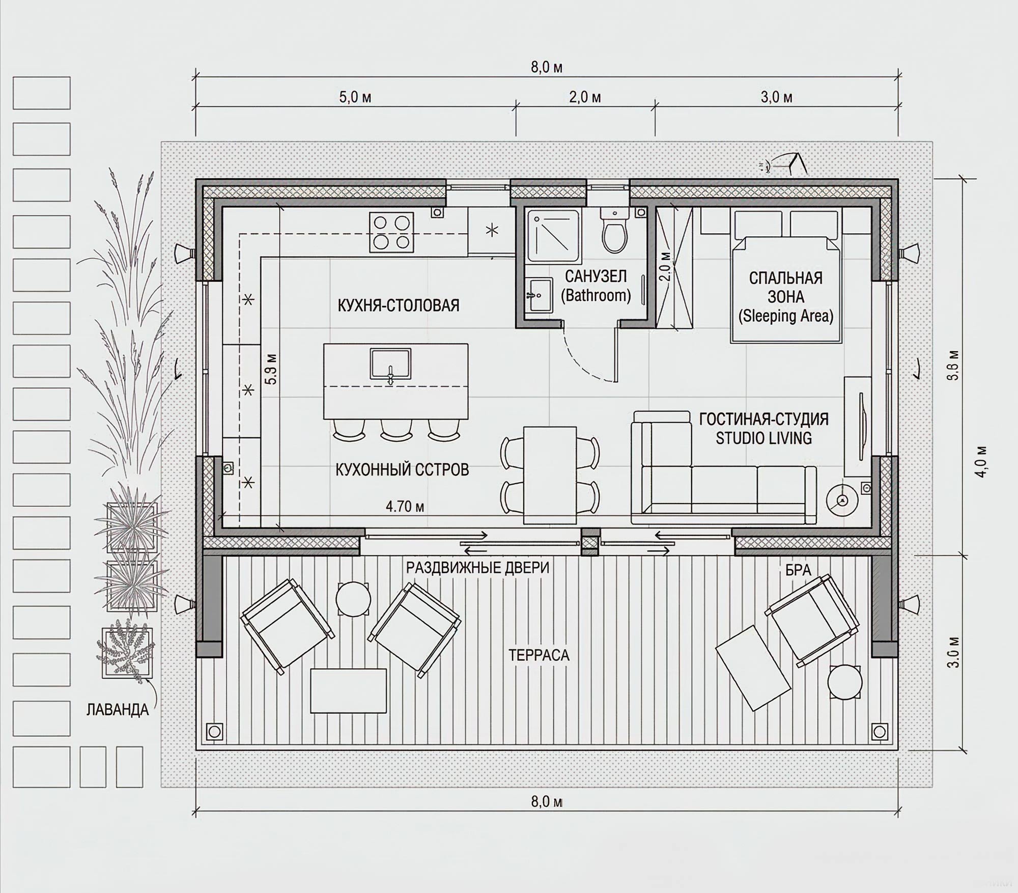
від 197 $ / м² Площа: 24 м²

Клас Стандарт

Кімнат: 1
Габарити: 6 × 4 м
+ тераса
Площа: 24 м²
Планування Стандарт
Строк будівництва від 30 днів
Монтаж / Встановлення: від 1 до 3 днів
Доставка і фундамент — оплачується окремо
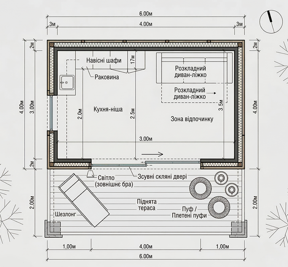
Модуль Комфорт — фасад Модуль Комфорт — вид 2 Модуль Комфорт — вид 3 Модуль Комфорт — інтер'єр
від 397 $ / м² Площа: 58 м²

Клас Комфорт

Кімнат: 2
Габарити: 7,15 × 8,15
+ гардеробна
Площа: 58 м²
Планування Комфорт
Строк будівництва від 45 днів
Монтаж / Встановлення: від 2 до 5 днів
Доставка і фундамент — оплачується окремо
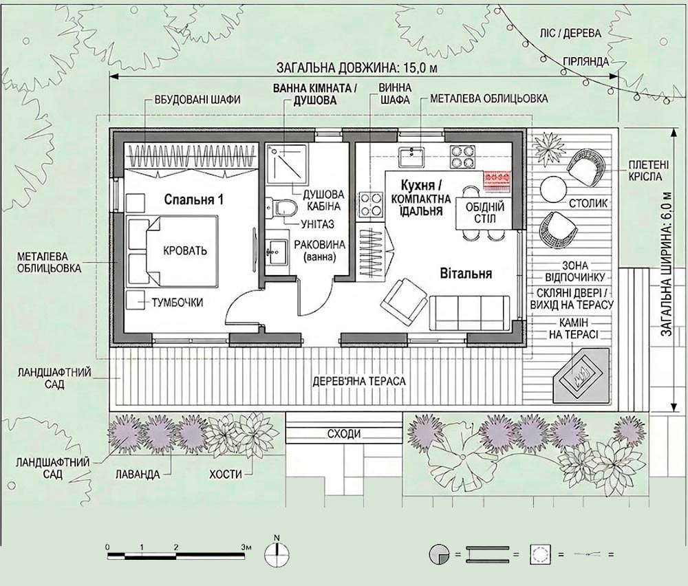
Модуль Преміум — фасад Модуль Преміум — вид 2 Модуль Преміум — вид 3 Модуль Преміум — вид 4
від 597 $ / м² Площа: 90 м²

Клас Преміум

Кімнат: 3
Габарити: 8,6 × 10,5
+ 2 санвузли
Площа: 90 м²
Планування Преміум
Строк будівництва від 60 днів
Монтаж / Встановлення: від 2 до 10 днів
Доставка і фундамент — оплачується окремо
Переваги

Чому модульна технологія?

Сучасний підхід до будівництва — швидко, чисто, якісно

АТГ Сервіс Буд
14+
років досвіду
Успішних проектів від Карпат до Полісся. Кожен будинок — з гарантією.
Офіційна гарантія на конструкцію
Виробництво та монтаж під ключ
Доставка по всій Україні
150+
проектів
98%
задоволених
3
дні монтаж
01
Монтаж від 3 днів
Без бруду, пилу та хаосу. Модуль встановлюється краном і готовий до заселення.
⚡ Швидко і чисто
Заводська точність
Кожен вузол зібраний на виробництві з контролем якості. Гарантія на конструкцію.
✓ Гарантія якості
W-клас енергоефективності
Сучасна багатошарова ізоляція тримає тепло взимку та прохолоду влітку.
❄️ Завжди комфортно
Під ключ
Проект, виробництво, доставка, монтаж та оздоблення. Лишається тільки завезти меблі.
🏠 Заїжджай одразу
Фундамент
Не потрібен капітальний фундамент
Модуль встановлюється на гвинтові або стовпчасті опори. Жодних масивних бетонних робіт, жодного порушення ландшафту. Економія до 40% на фундаменті.
−40%
вартість фунд.
1 день
встановлення
Безкоштовний розрахунок

Розрахуйте вартість вашого будинку

Оберіть параметри — і ми покажемо орієнтовну вартість та підберемо варіант

Крок 1 з 5 20%
Модульний будинок
Стандарт 24 м²
Орієнтовний розрахунок
Площа
24 м²
Ціна / м²
від 197$
$4 000 $60 000+

Як ми працюємо

Сучасний підхід до будівництва

1

Заявка

Розповідайте про ваші побажання. Відповімо за 15 хвилин.

Знайомство
2

Проект і кошторис

Виконуємо креслення, узгоджуємо кожну деталь та підписуємо договір.

Проектування
3

Виробництво

Заводське виготовлення модулів. Щоденні фото-звіти у месенджер.

На заводі
4

Доставка

Доставляємо модулі на ділянку спеціальним транспортом по всій Україні.

Логістика
5

Монтаж

Встановлення краном від 1 до 3 днів. Заселяйтесь одразу.

Готово!